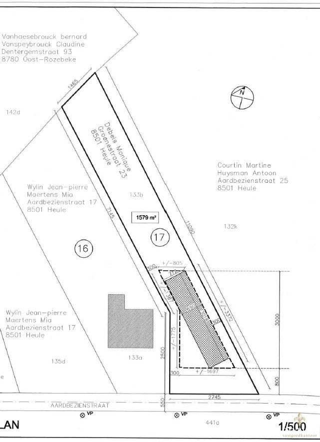
Bouwgrond met landelijke ligging en vergezicht te Heule
Verkocht Heule
Deze bouwgrond met een oppervlakte van 1.579m² biedt u de kans om een woning te bouwen met een fantastisch weids vergezicht. De landelijke en rustige ligging is een grote troef, zeker in de wetenschap dat alle belangrijke invalswegen toch vlakbij zijn.
Geen bouwverplichting, veel mogelijkheden. Benieuwd naar meer? Neem dan contact met ons kantoor, wij bezorgen u graag alle info en details. Onze ref. DEV1399
Geen bouwverplichting, veel mogelijkheden. Benieuwd naar meer? Neem dan contact met ons kantoor, wij bezorgen u graag alle info en details. Onze ref. DEV1399