Nieuw te bouwen vrijstaande woning op 844 m² in een jonge verkaveling
Verkocht Kuurne
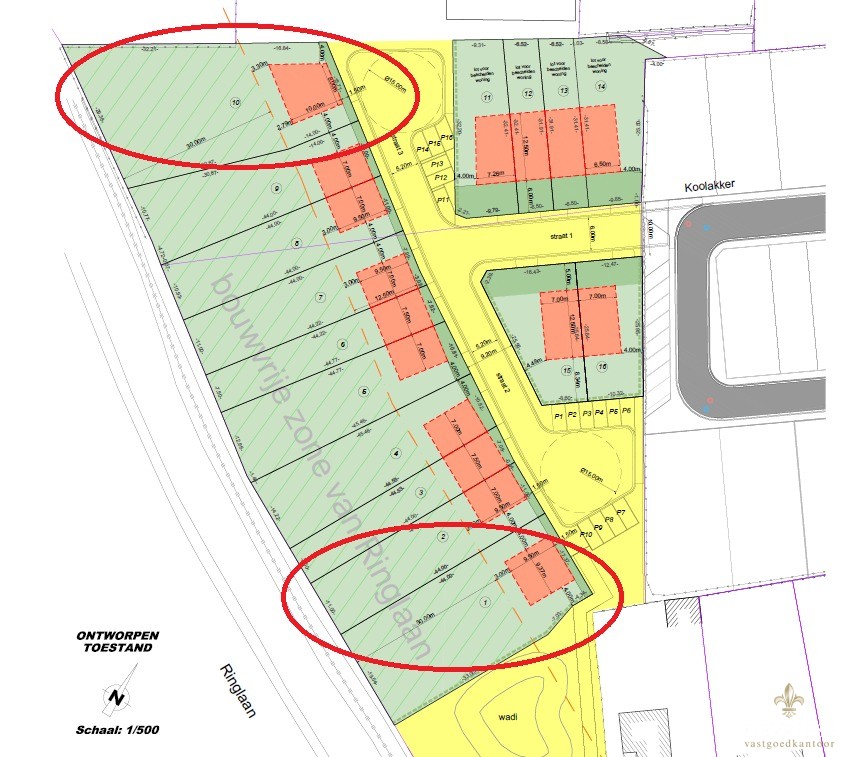
Nieuw te bouwen vrijstaande woning gesitueerd in een kleine verkaveling van 16 loten. De verkaveling omvat 2 alleenstaande woningen , 10 halfopen bebouwingen en 4 rijwoningen. Gelegen langs de Bondgenotenlaan en ter hoogte van de Koolakker.
Op het lot 1, met een grondoppervlakte van 844 m², wordt een alleenstaande woning voorzien van ongeveer 9,00 x 9,50 m met 2 bouwlagen en een dak. Plannen zijn nog in ontwerpfase. De koper heeft een ruime inspraak in type woning, indeling en afwerkingsmaterialen zodoende volledig naar eigen smaak en mogelijkheden te bouwen.
Een kwalitatieve bouw, verzorgde afwerking, sterke energiezuinigheid met een E-peil van 50 (of lager), aanwezigheid van zonnepanelen, super isolerende beglazing, ...
De bouwvergunning werd bekomen en werken zijn gestart. Platteau is reeds gegoten!
Smaakt dit naar meer en interesse? Geef ons een belletje, wij bezorgen u graag alle details, op 056/44.03.69
Basisprijs van 328.160 euro (excl. btw en kosten).
Onze Referentie DEV1688
Op het lot 1, met een grondoppervlakte van 844 m², wordt een alleenstaande woning voorzien van ongeveer 9,00 x 9,50 m met 2 bouwlagen en een dak. Plannen zijn nog in ontwerpfase. De koper heeft een ruime inspraak in type woning, indeling en afwerkingsmaterialen zodoende volledig naar eigen smaak en mogelijkheden te bouwen.
Een kwalitatieve bouw, verzorgde afwerking, sterke energiezuinigheid met een E-peil van 50 (of lager), aanwezigheid van zonnepanelen, super isolerende beglazing, ...
De bouwvergunning werd bekomen en werken zijn gestart. Platteau is reeds gegoten!
Smaakt dit naar meer en interesse? Geef ons een belletje, wij bezorgen u graag alle details, op 056/44.03.69
Basisprijs van 328.160 euro (excl. btw en kosten).
Onze Referentie DEV1688